西安
文化场馆
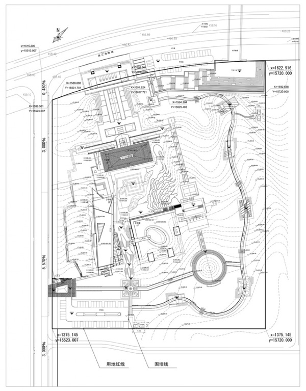
西安秦二世陵遗址公园
方案设计:宋照青
[
1
] [
2
] [
3
]
4
[
5
]
文化场馆
资讯推荐
专题推荐
观点推荐
机构推荐