
开 发 商:世茂集团
景观设计:(IS GROUP)英斯佛朗&道之大景观
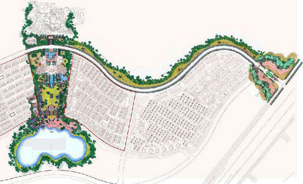
项目地点:江苏·江阴
项目规模:17万平方米

世茂御龙湾项目规划设计旨在面向未来,打造集旅游度假、生态文化、商务会议、休闲娱乐、运动健身、商业居住于一体的旅游综合体。打造立体多元的旅游度假综合体。在商业定位方面也融合了成人的消费需求,在餐饮、消费、娱乐休闲等领域满足家庭全员,真正实现家庭成员以儿童为核心的全龄消费领地。

设计主题:尊贵典雅+儿童梦幻乐园+休闲度假+唯美浪漫
设计亮点:许愿池、水上小火车、叠溪泳池、儿童梦幻乐园、浪漫婚礼中心

设计难点:1、时间紧迫,从设计到施工总共4个半月不到,设计时间仅为1个半月;2、如何在短时间内,设计与施工能最大化还原“许愿池”原作的效果;3、如何解决水上火车、建筑叠水瀑布、场地淤泥与沉降以及严重的交叉施工;4、造价预算大幅削减,如何实现设计初衷。






