商业酒店
项目报道
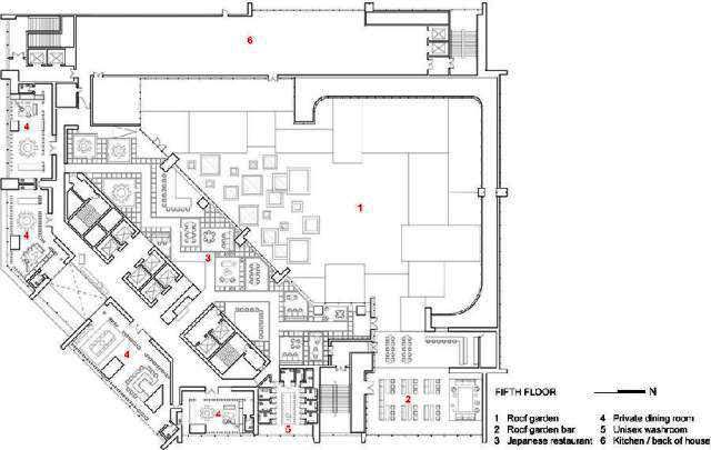
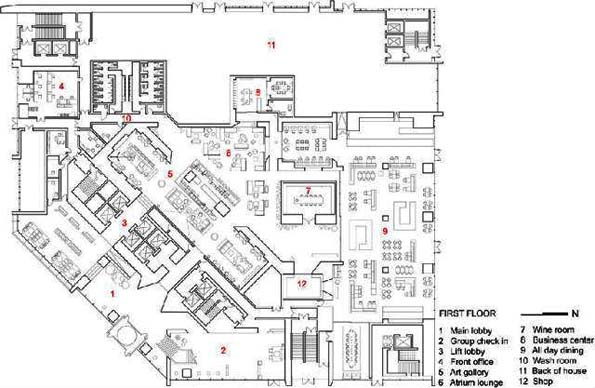
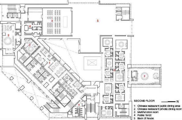
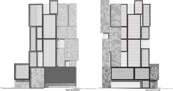
郑州建业艾美酒店
方案设计:如恩设计研究室 Neri&Hu
[
1
] [
2
] [
3
] [
4
]
5
项目报道
资讯推荐
专题推荐
观点推荐
机构推荐