
东莞万科棠樾
开 发 商:东莞市新万房地产开发有限公司、东莞市塘厦镇房地产开发公司
投 资 商:东莞市万科房地产开发有限公司
建筑设计:天津华汇工程建筑设计有限公司
占地面积:52 313.11 ㎡
建筑面积:9 782.34 ㎡
容 积 率:0.19
绿 化 率:60%
物业类型:别墅
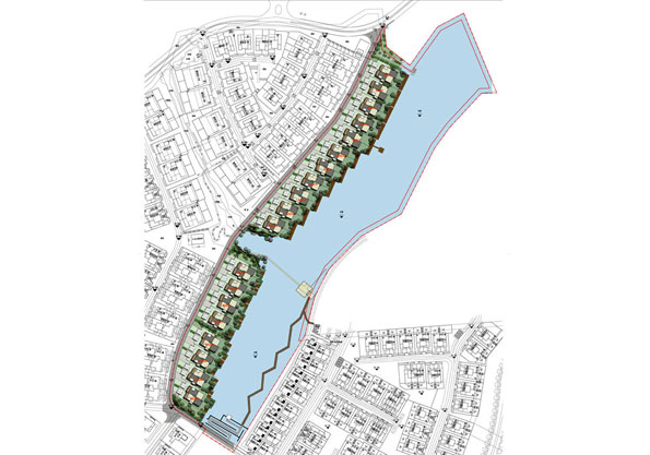
万科棠樾紧邻国家一级森林公园——大屏障森林公园、观澜湖高尔夫球场及企洞水库,依山傍水,自然环境优美。

本期新推项目分为低层住宅及双拼住宅,独立围合的内院给居住者提供了通透的阳光与流畅的新鲜空气,还给主人提供了静谧安宁的独享空间,也给邻里之间的“礼尚往来”提供了方便;花园较街道略高,既与街道有些相通又有几分私密。在每个空间周围都设置树木、矮墙、篱笆、拱廊和篷下小径,直到它成为一个整体。

建筑层数以三层为主,局部退台修建屋顶花园,条件优越,提高了生活舒适度,又能形成丰富多变的立面形象。




