
开 发 商:西安万科恺洲置业有限公司
投 资 商:万科集团
代 理 商:西安世联投资咨询有限公司
建筑设计:上海日清建筑设计有限公司,陕西晨光建筑设计研究有限公司
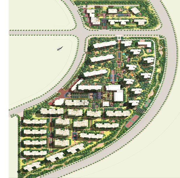
占地面积:152 667 ㎡
建筑面积:380 000 ㎡
容 积 率:2.53
绿 化 率:35%
物业地址:曲江寒窑遗址公园南侧(寒窑路与曲江池南路交汇处)
所属地段:城南曲江新区
开盘时间:预计2012年03月17日开盘
交房时间:预计2015年03月29日收楼
产权年限:70

项目以泰式园林为蓝本,融合东南亚热情、神秘、浪漫的异域风情,以形态各异的水景、叠水和喷泉为中心,以特色景观亭廊、回廊,极具特色的植物为主体,将充满风情化色彩的雕塑、小品、浮雕作为点缀,通过对这些元素的提炼与设计,营造热情、神秘而又亲切的景观感受,打造出西安首家泰式风景园林社区。





