现代风格
现代简约
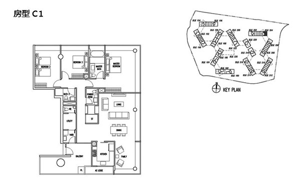
新加坡翠城新景
方案设计:OMA大都会
[
1
] [
2
] [
3
]
4
现代简约
资讯推荐
专题推荐
观点推荐
机构推荐