上个月,我陪同CCDI青年建筑师代表团走访德国建筑。德国一向有国家资助艺术的传统,二战之后的德国是剧场发展最稳定的国家。我们实地考察了在教科书中的经典作品——汉斯夏隆的柏林爱乐音乐厅,以及最新由赫尔佐格和德梅隆设计的正在建设之中的汉堡易北音乐厅,这两座建筑可以说是现代建筑前期和当代先锋设计的两座风向标。柏林爱乐音乐厅的“葡萄园台地式”观众席,至今依然流行;易北音乐厅更是创造性地将新建筑叠加在传统的红砖货栈上,将历史和今天戏剧化地焊接在一起,其建筑功能也从单一的剧场延伸出多元的消费空间——这是一个非常重要的“主旋律”:回顾我们CCDI近期设计的几个剧场(包括深圳南山文体中心、厦门海峡交流中心等等),不难发现,伴随着城市发展的需求,政府和开发单位越来越期待观演建筑与商业、酒店、交通、办公等其他功能混合开发、共同设计,由此带来观演建筑从“单独营造”向“消费综合体”的转变,出现剧场与CBD的“共生”模式。CCDI正在设计之中地四座剧场无一例外地迎合了这种现象。从经济学和社会学意义上说,共生的开发模式可以提高了经济效益和入座率,避免了剧场建筑的“孤岛”效应。我们认为这会是未来中国城市剧场建设的主流趋势。

CCDI设计的厦门海峡交流中心剧场(设计中)

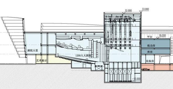
CCDI设计的盐城文化中心剧场(建设中)


CCDI 设计的中山文化艺术中心剧场,2006年建成



