场馆建筑
理论分析
两个中国馆:从“官帽美学”到“希望的田野”
作者:艾侠 来源:网络
建筑解题
部分透视效果图
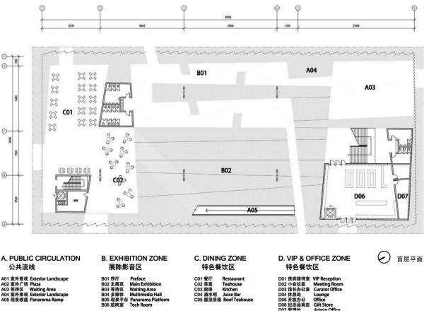
建筑一层和二层平面
[
1
]
2
[
3
] [
4
]
理论分析
资讯推荐
专题推荐
观点推荐
机构推荐