场馆建筑
文化市场场馆
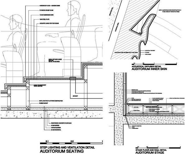
盖达尔•阿利耶夫文化中心
方案设计:扎哈·哈迪德建筑设计事务所
[
1
] [
2
] [
3
] [
4
]
5
文化市场场馆
资讯推荐
专题推荐
观点推荐
机构推荐