文化市场场馆
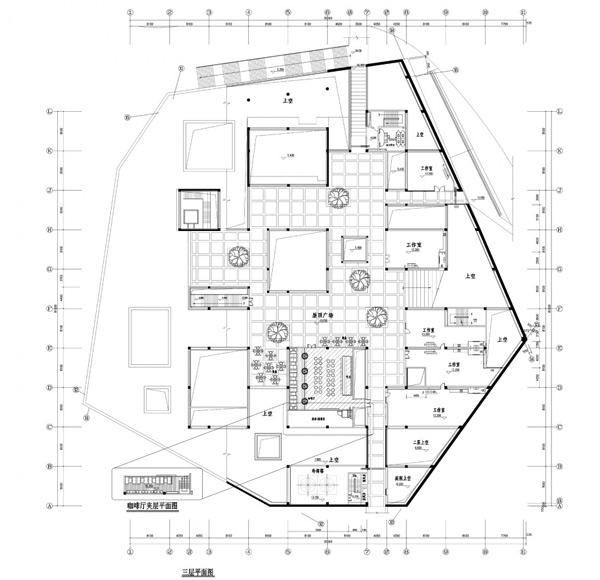
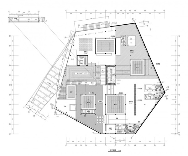
深圳大芬美术馆
方案设计:URBANUS都市实践建筑事务所















[1] [2] [3] [45 
文化市场场馆
资讯推荐
专题推荐
观点推荐
机构推荐