教育建筑
幼儿园
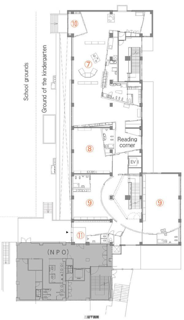
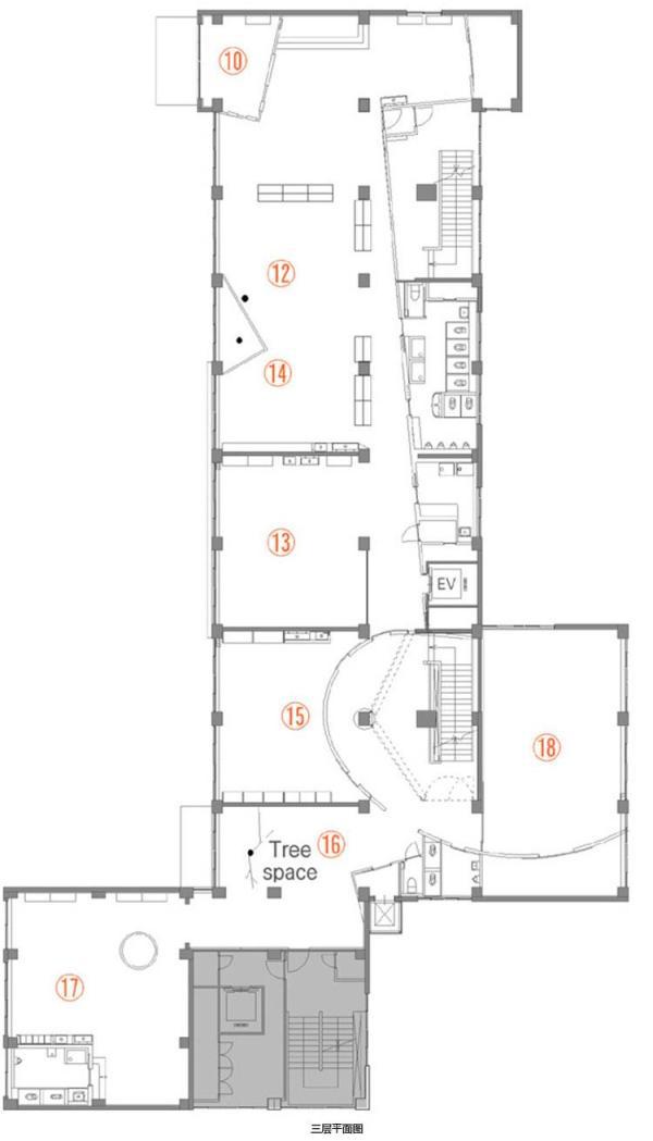
东京Mokumoku幼儿园
作者:16A Inc.建筑事务所 来源:16A Inc.建筑事务所
[
1
] [
2
] [
3
] [
4
]
5
幼儿园
资讯推荐
专题推荐
观点推荐
机构推荐