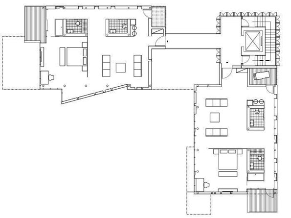
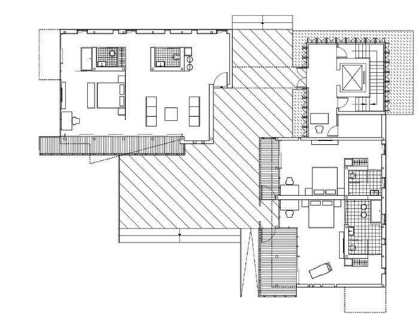
项目推荐
Innhouse隐舍
方案设计:DCSJW整理










[12 
项目推荐
资讯推荐
专题推荐
观点推荐
机构推荐