
占地面积:5 000 ㎡
建筑面积:3 300 ㎡
建筑设计:上海百慧建筑咨询有限公司
物业地址:苏州芦墟镇牛舌头湾15号
物业类型:文化创意园
所属地段:吴江区芦墟古镇
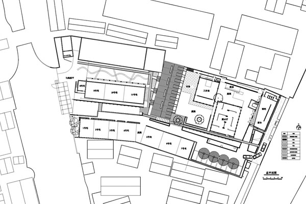
苏州慧筑318文化大院遵循古镇特有的生长模式,在“旧房改造”的前提下,让设计与当地的文化不断的磨合,建成一个集文化、设计、创意、运营管理和资本于一体的微文创综合体。

318文化大院选址在长三角地区具有地域文化特色、良好风貌的传统老镇,左邻苏嘉杭高速公路,南接申嘉湖高速,北面望沪青平高速,交通方便快捷。项目遵循古镇特有的生长模式,在“旧房改造”的前提下,让设计与当地的文化不断的磨合,建成一个集文化、设计、创意、运营管理和资本于一体的微文创综合体。通过设计兴镇、文化兴镇的理念,为沉睡的老镇注入活力,使之焕发生机。它宜商宜居,满足了人们的旅游度假需求和投资需求。

由老供销社改造的318文化大院,外形保留老工厂的整体厂房造型,其中设计师别墅住宿区域由11位设计风格不同的业界设计师跨刀合作。保留了本土古镇建筑特色的同时融合新的设计元素,力求体现其功能性与舒适性、创意型。

318文化大院以“设计立县”为原则,引入“设计师客栈”这一理念,探索与创建一种不同于传统江南古镇的商业化旅游模式,将当地的文化融入建筑,并保留当地文化遗产,建造一个朴实,回归建筑本身的院子,让所有人都能够参与其中,同时与当地民间手工艺人的合作,搭建起一个前后台互动的沟通桥梁。




