园区地产
文化创意园
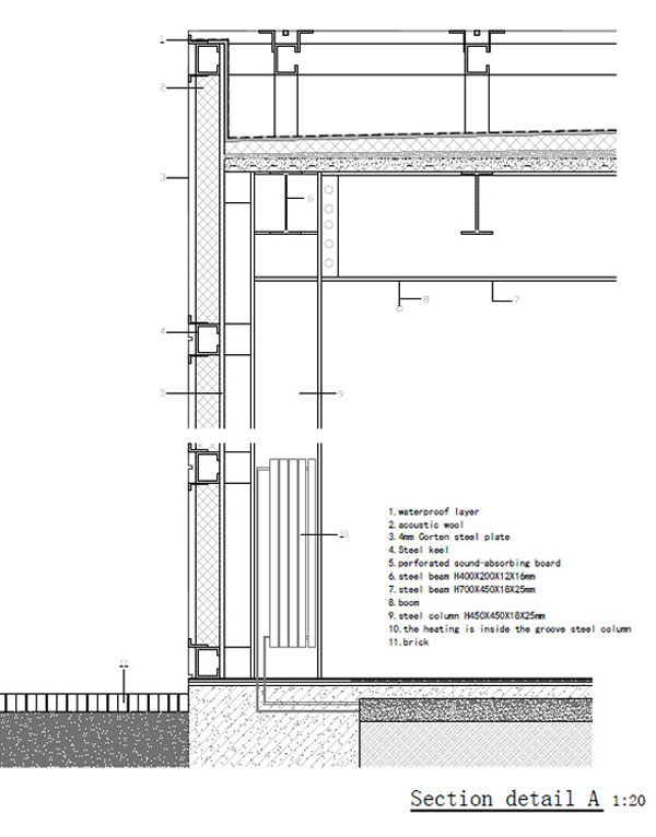
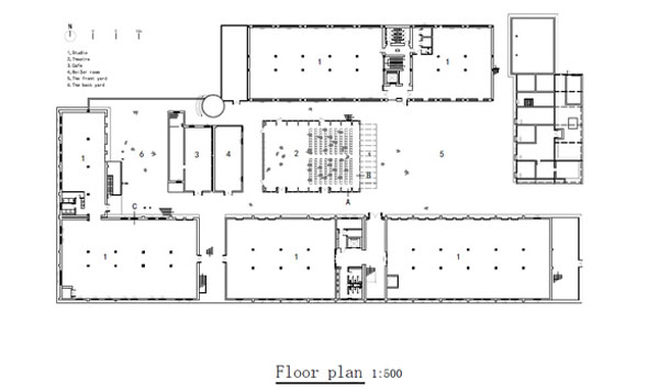
北京77文化创意园
方案设计:原地建筑
[
1
] [
2
]
3
[
4
]
文化创意园
资讯推荐
专题推荐
观点推荐
机构推荐