室内设计
商业空间
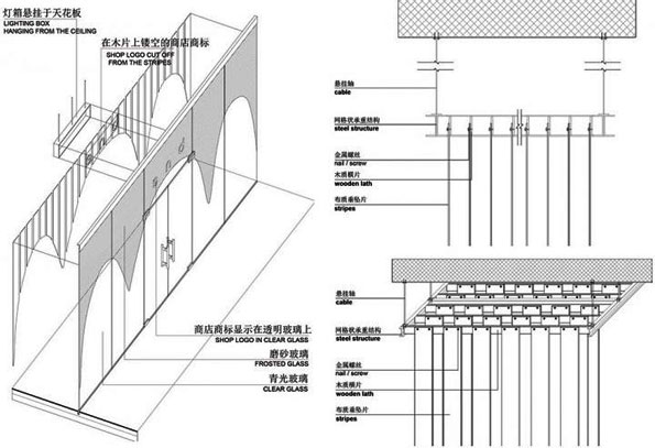
重庆SND时尚商店设计
方案设计:3Gatti Architecture Studio
[
1
] [
2
]
3
商业空间
资讯推荐
专题推荐
观点推荐
机构推荐