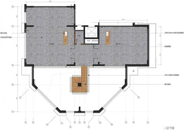
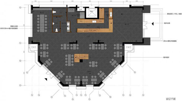
酒店餐饮空间
吉林松花湖Baita Italia咖啡馆空间设计
方案设计:SLOW Architects










[12 
酒店餐饮空间
资讯推荐
专题推荐
观点推荐
机构推荐