室内设计
酒店餐饮空间
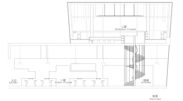
北京CupOne咖啡厅
方案设计:纬度建筑
[
1
] [
2
]
3
酒店餐饮空间
资讯推荐
专题推荐
观点推荐
机构推荐