综合体
商务办公综合体
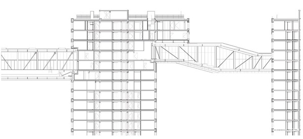
当代MOMA
方案设计:史蒂芬.霍尔建筑事务所
[
1
] [
2
] [
3
] [
4
]
5
[
6
]
商务办公综合体
资讯推荐
专题推荐
观点推荐
机构推荐