
上海洛克菲勒外滩源 整体鸟瞰

上海洛克菲勒外滩源 总平面图

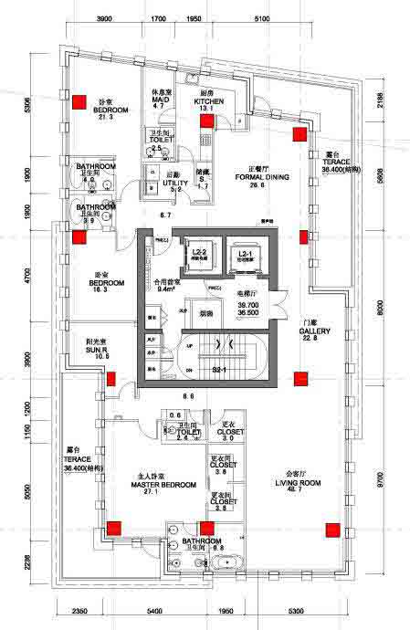
上海洛克菲勒外滩源2号楼住宅套型
参考文献:
1,《理想空间》第44期“城市综合体设计”专刊,同济大学出版社,2011
2,王桢栋,《当代城市建筑综合体研究》,中国建筑工业出版社,2009
3,Rem Koolhass,《S,M,L,XL》,The Monacelli Press, 1998
4,世联地产,综合体研究报告,2006
5,《商业综合体HOPSCA》,天津大学出版社, 2010
6,罗卿平,高容量城市的空间设计对策,建筑学报,2006-01
7,时匡, 新城市主义运动的城市设计方法论,建筑学报2006-01
8,徐洁,商业综合体的城市竞争力模型,时代建筑,2005-02



