项目报道
巢鸭信用银行志村分行
方案设计:Emmanuelle Moureaux Architecture + Design

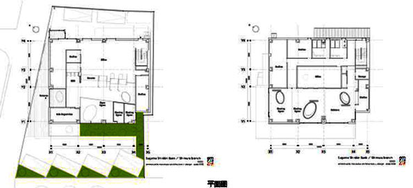
自动提款机、窗口、咨询台及一个设置了14种不同颜色椅子的开放空间位于一层。




二层设置了办公室、会议室和一间自助餐厅,三层是员工们的更衣室。长长的玻璃采光井穿透建筑的一层和二层,使这两层沐浴在自然光线中,也通过它为这两个楼层吹入新风。






[1] [23 
项目报道
资讯推荐
专题推荐
观点推荐
机构推荐