办公与超高层
项目报道
朱家角行政中心
方案设计:马达思班建筑事务所
项目总规划图
侧面效果图
侧面尺寸图
侧面尺寸图
侧面尺寸图
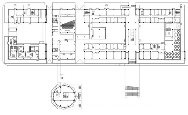
平面尺寸图
[
1
] [
2
] [
3
]
4
项目报道
资讯推荐
专题推荐
观点推荐
机构推荐