办公与超高层
项目报道
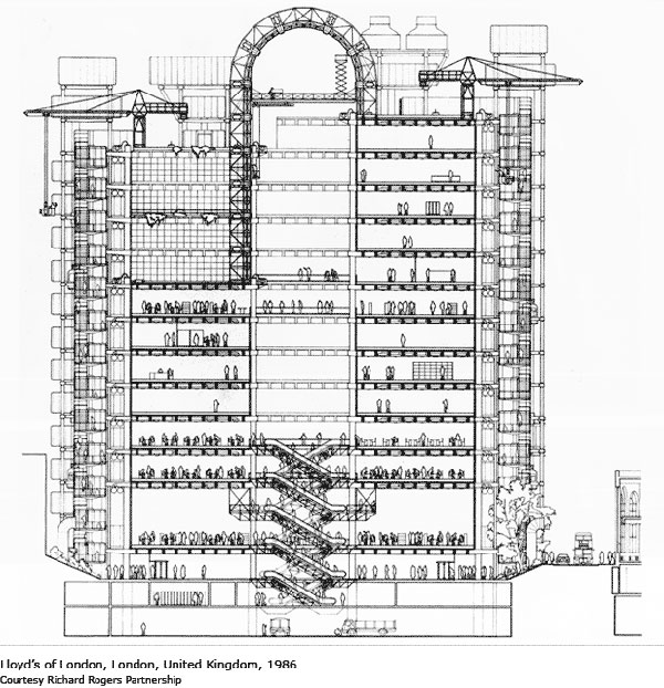
劳埃德大厦Lloydis Building
方案设计:理查德.罗杰斯
[
1
] [
2
]
3
项目报道
资讯推荐
专题推荐
观点推荐
机构推荐