养老地产
设计探讨
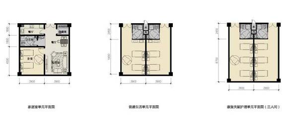
“老有所医”: 老年社区医疗设施体系研究
作者:高枫、艾侠 来源:CCDI
[
1
] [
2
]
3
设计探讨
资讯推荐
专题推荐
观点推荐
机构推荐