项目报道
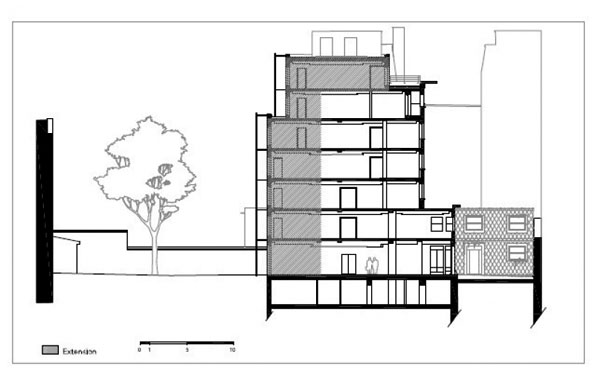
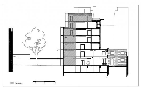
疗养中心
布兰奇老人疗养院
方案设计:法国philippon-kalt建筑师事务所
[
1
] [
2
] [
3
] [
4
]
5
疗养中心
资讯推荐
专题推荐
观点推荐
机构推荐