项目报道
养老院
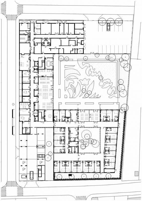
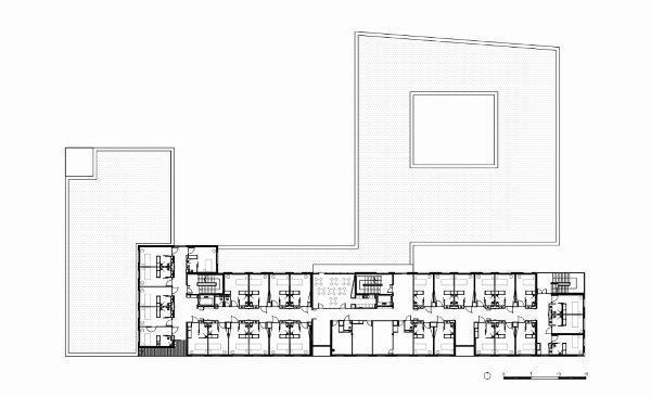
法国,图尔,Monconseil养老院
方案设计:Atelier Zundel
[
1
] [
2
]
3
养老院
资讯推荐
专题推荐
观点推荐
机构推荐