SOHO地产
项目报道
望京SOHO
方案设计:Zaha Hadid建筑事务所
平面效果图
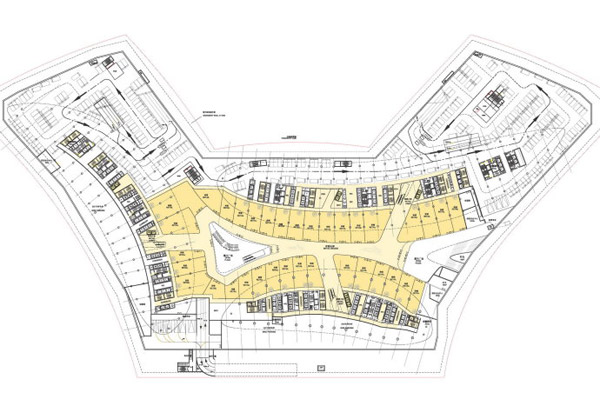
地下一层商业平面图
机动车与消防流线分析图
步行及自行车流线分析图
[
1
] [
2
] [
3
] [
4
]
5
[
6
]
项目报道
资讯推荐
专题推荐
观点推荐
机构推荐