思邦设计
项目
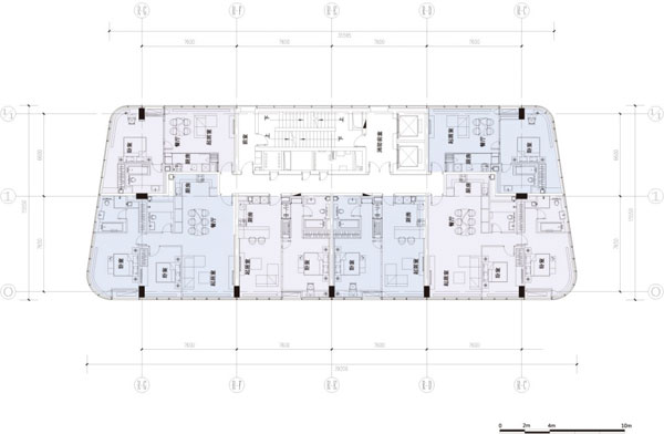
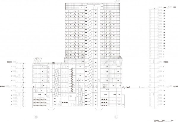
北京来福士广场
方案设计:思邦建筑设计咨询有限公司 、英国SMC ALSOP建筑事务所
[
1
] [
2
] [
3
] [
4
]
5
项目
资讯推荐
专题推荐
观点推荐
机构推荐