度假酒店
项目报道
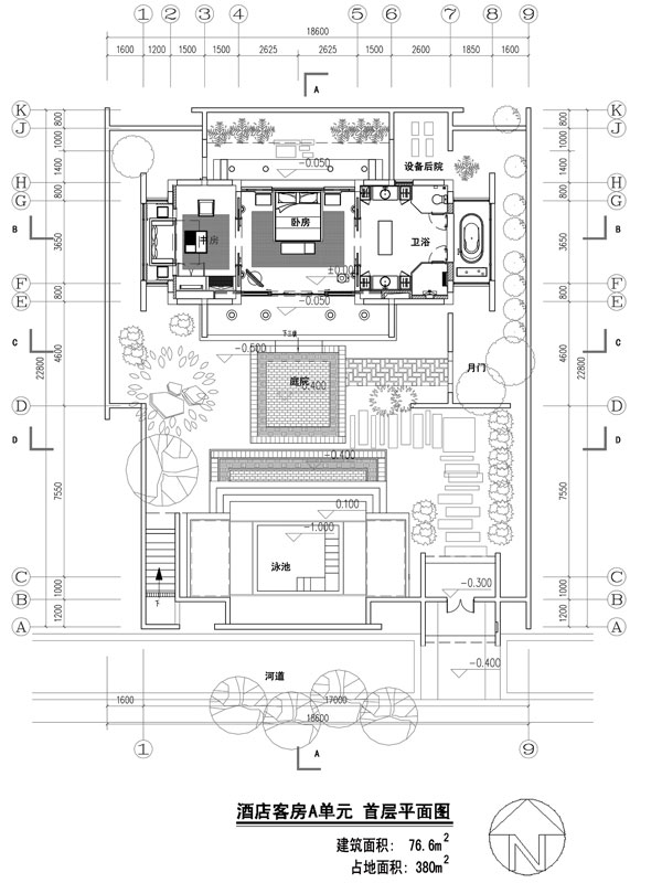
九华山雨润涵月楼度假酒店
方案设计:上海北斗星景观设计工程有限公司
[
1
] [
2
] [
3
]
4
[
5
]
项目报道
资讯推荐
专题推荐
观点推荐
机构推荐