异域风格
西班牙
深圳招商华侨城•曦城
作者:地产设计网-DCSJW整理 来源:网络
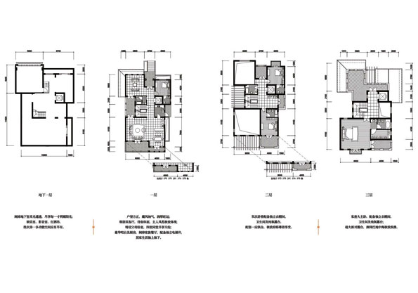
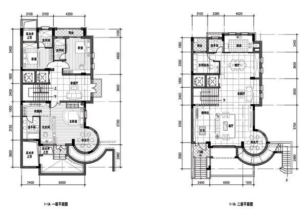
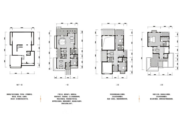
别墅户型图
[
1
] [
2
]
3
西班牙
资讯推荐
专题推荐
观点推荐
机构推荐