建筑设计
项目报道
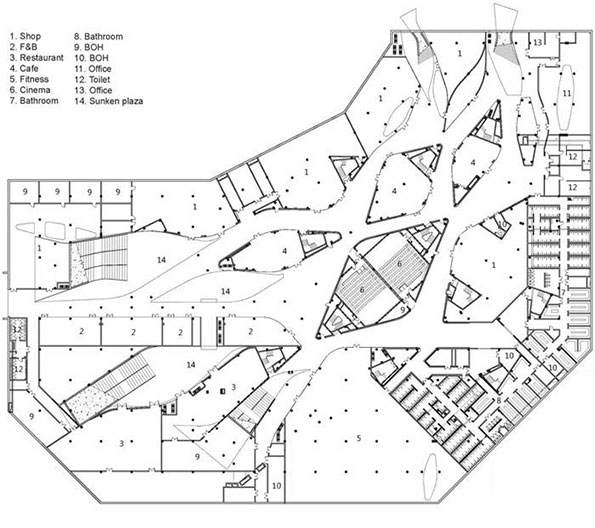
日照山海天游客中心
方案设计:地产设计网-DCSJW整理
[
1
] [
2
]
3
[
4
]
项目报道
资讯推荐
专题推荐
观点推荐
机构推荐