园区地产
科技园区
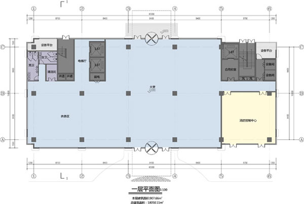
洛阳智慧工场
方案设计:BAKN贝肯设计
[
1
] [
2
]
3
[
4
]
科技园区
资讯推荐
专题推荐
观点推荐
机构推荐