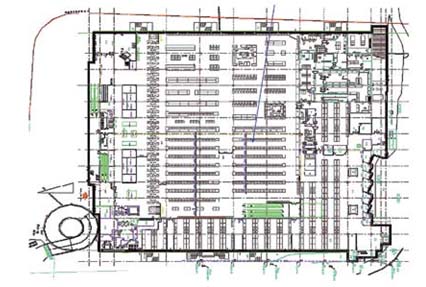
4.4.1.2 动线设计根据单向道路原则及楼层的具体特点,动线设计做如下考虑。首先是楼层上下动线:从入口处直接乘电梯上二楼,之后顾客可在二楼按由右到左的动线开始购物。再由二楼通过自动坡道下一楼。在一楼购物的顺序依次为由右到左,由后到前。这样既能使进入卖场的顾客有较长的逗留时间,同时又能使顾客逛完整个卖场。既能增加冲动购买的可能性,又能避免或减少卖场的死角,提高场地的使用效率。再次是入口动线:入口设在1F的右边,符合人类生理习惯,顾客由此进入卖场,直接乘电梯上楼;出口设在一楼的左边,按由右到左的动线出收银台与入口相对应。

图十一 欧尚中原店一层平面商业布局
4.4.1.3 主次通道设定。主次通道的设定考虑两个因素:店面由两部分组成:主体呈梯形且不规则,这为主次通道的规划增加了难度,这是其一。其二,楼面动线是依由右到左的顺序。所以,建议主通道在6米左右,次通道在3米左右。由于整个楼层是按单向道一圈次动线设计,为避免营业高峰时主通道拥挤,二楼在平行中原路方向设定宽度3米的主通道三条,一楼在平行嫩江路方向设定宽度为3米的次要通道若干条。另外为便于丈量及定位,地面铺设30CM*30CM地砖。
4.4.1.4 平面布局⒈如前所述,1F~2F用于经营,其中:1F右下突出处为仓库,收货区;利用路宽达30m的道路为仓库天然停车场。⒉大门设在中原路面墙的中央,通过大厅,出入口分别位于两侧。⒊收银台设在1F中原路的位置,服务台在1F大厅中央,寄物柜设在右侧。⒋收货平台设在一楼后方,收货后可用货梯将商品运至各楼层。⒌卖场办公室设在旁边商住房内,便于对卖场实施现场管理。
4.4.2 商品大致布局
1F主要为日配和生鲜食品(包括蔬果、面包、熟食、鱼肉等), 干性食品(包括饮料、烟酒、休闲食品、一般食品、营养品等)。 2F主要经营非食品, 主要包括洗化用品、大小家电、五金工具、家居用品、服饰针织、文教体育用品、箱包鞋袜、音像制品等。另外,在1F适当位置设一烟酒区,2F设一精品及专柜区,作为大卖场业种的补充。

图十二 欧尚中原店二层平面商业布局
4.4.3 商品陈列意见
因楼层较高(6.5m)可考虑采用高货架陈列。为了凸现展示效果,在采用高货架大量陈列的前提下,可采用其他陈列方式:如服饰、休闲食品、内衣裤、文体用品等采用挂钩陈列,食品、南北货、洗涤用品采用斜口篮陈列,音像制品等采用特殊架陈列。对于高回转商品、高毛利商品、促销商品、季节性商品、节庆商品则采用端头陈列、堆头陈列等大量陈列法。考虑到有体积小、单价高的商品,为了防盗,对此类商品用柜台陈列于精品区,实行单独收银。生鲜食品是卖场经营的一个重要方面,不仅是因为购买率高,能创造较高的营业额和毛利,更重要的是这类商品对于大卖场的店堂气氛营造有不可替代的作用。因而生鲜食品的陈列就显得特别重要,除少部分采用货架陈列外, 较多的采用冷藏柜陈列、全体集中陈列、格子架陈列等。上述陈列方式,可确保生鲜食品的品质和鲜度,同时体现出生鲜食品的便利性,多样性及变化性,让顾客有满足感、季节感、新鲜感和丰富感。总之,不论是食品,还是非食品,不论采用何种陈列方式,都要体现出量感,这是陈列好与差的重要点。
表一欧尚中原店扩建后面积比较
欧尚中原一号店 | 扩建前面积/m2 | 扩建后面积/m2 | 扩建后增加面积/m2 |
建筑总面积 | 14921.7 | 27178 | 12257 |
销售区域面积 | 7640 | 11424 | 3784 |
小店购物广场 | 1260 | 2619 | 1359 |
机动车停车位 | 208个 | 275个 | 67个 |
自行车停车位 | 500个 | 1200个 | 700个 |
作者张博凡 法国欧尚超市集团中国区总部项目经理



